JOHAN SKYTTESKOLAN

^ TA INTE BORT ^ Denna text syns inte i publicerat läge, detta är titeln för inlägget på översikten

JOHAN SKYTTESKOLAN / EKÄNGEN

Projekttyp

Utbildningslokaler, 
Nybyggnad, fristående tillbyggnad


Adress

Västerängsvägen 19, 
125 58 Älvsjö


Byggherre

SISAB


År:

2015 - 2019



Nytt och gammalt i harmoni


År 2015 fick Stadion arkitekter i uppdrag att utreda möjligheterna till en ny skolbyggnad i kv Ekängen bredvid Johan Skytteskolan i Älvsjö som vid denna tidpunkt hade skol- och fritidsverksamhet för cirka 160 elever i årskurserna F-6. Den nya byggnaden skulle fungera för en treparallellig F-6-organisation för 630 elever. 

Utredningen utmynnade i ett förslag på en L-formad skolbyggnad i tre våningar om totalt cirka 6000 kvm. Genom byggnadens form kunde skyddad skolgård skapas där befintliga bergknallar och ekar bevarats och som samtidigt separerats från parkerings- och inlastningsytor.




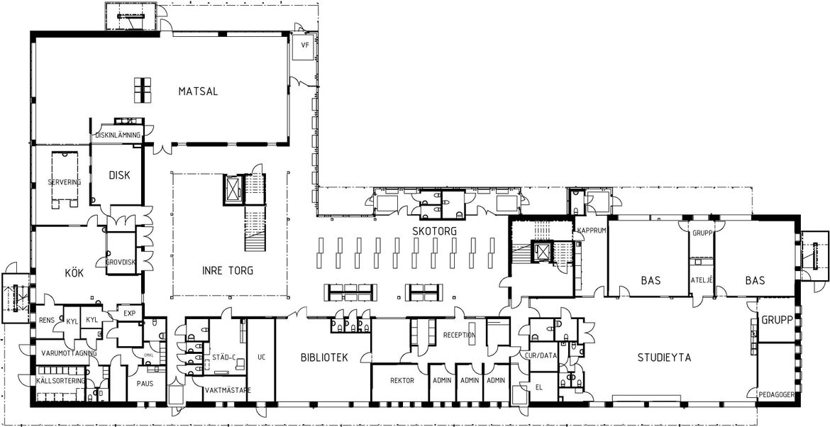
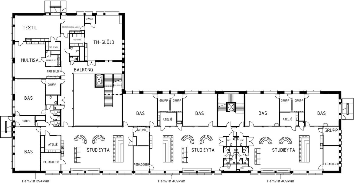
Utbildningsförvaltningens önskemål var att frångå det traditionella systemet med ett hemklassrum per lärare och istället skapa hemvist med en rik variation av rum för olika lärsituationer. Lösningen var en stor sammanhållen studieyta med mindre rum runtomkring. Den nya skolan är organiserad i sju hemvister, med en årskurs i varje hemvist, bestående av två basrum, en stor studieyta samt mindre grupprum och ateljéer. Undervisning kan bedrivas på olika sätt i de olika hemvisterna, i olika lärmiljöer och i olika gruppstorlekar beroende av behov. I hemvisten bedrivs även fritidsverksamhet. Fönstersättning och ventilation planerades så att varje studieyta enkelt kan delas in på ett allrum med pentry, ett klassrum och ett kapprum. 

På entréplanet finns ett stort entrétorg och en trapphall där elever och besökande tar av sig sina skor innan de går vidare in i byggnaden. I anslutning finns bibliotek, reception, skolans administration samt storkök och matsal med plats för ungefär 230 personer. Förskoleklasserna har en egen entré direkt från skolgården till sin hemvist.

Gestaltningsidén för projektet var ”pixel” - en byggsten/en del av en större bild. Detta ledord har genomsyrat gestaltningen från litet till stort: Skolans planlösning med varierande rumsstorlekar som bildar ett större sammanhang i hemvister, det rumsomfattande konstverket av Jesper Nyrén på väggen i stora entrétorget som är uppbyggt av hundratals små delar som tillsammans skapar en vacker akustikdämpande vägg, den genomtänkta färgsättningen där varje plan har sitt eget uttryck men tillsammans med de övriga bildar en sammanhållen helhet.

Byggnaden projekterades för att klara Miljöbyggnad Silver. Stor vikt lades vid att optimera fönsterstorlekar för att klara dagljuskrav och krav på termiskt klimat sommar. Fönstren på solutsatta fasader på plan 2 och 3 har försetts med fasta utvändiga solskydd. På entréplanet skuggas fönstren av skärmtak som ger byggnaden karaktär och eleverna en trivsam plats utomhus. 
Hållbara och miljövänliga material har valts in- och utvändigt.

Entréplan

Plan 1