RICHARD STEFFENGYMNASIET

^ TA INTE BORT ^ Denna text syns inte i publicerat läge, detta är titeln för inlägget på översikten

RICHARD STEFFEN GYMNASIET

WISBYGYMNASIET

Projekttyp

Utbildningslokaler


Adress

Säves väg 10, 621 46 Visby


Beställare

Region Gotland


År:

2000-2004




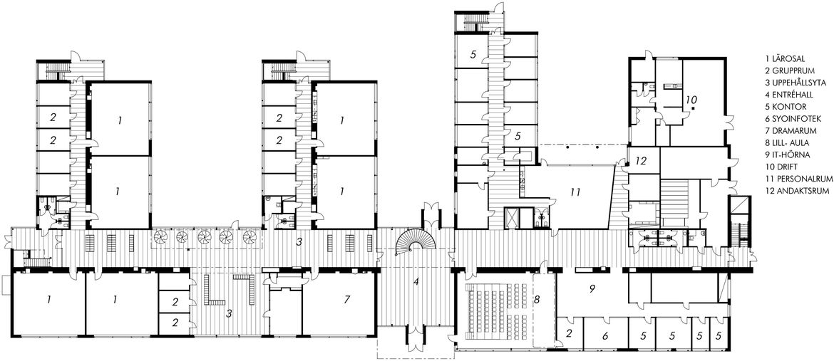
Våren 2000 fick Stadion arkitekter uppdraget att rita ett nytt gymnasium på Säveskolans skolområde i Visby som gavs namnet Richard Steffengymnasiet. Gymnasiet skulle inrymma Samhällsvetenskapsprogrammet SP, Barn och Fritidsprogrammet BF, bibliotek, administration och syo.

Huset situerades längs med parkområdets praktfulla grönska. Parken blev en central del i skolområdet och samspelet mellan grönskan inomhus och utomhus är en stor kvalitet i den nya byggnaden.


Skolan är uppbyggd som två delar: undervisningshuset och bibliotekshuset, med huvudentré mellan de bägge delarna.

Husets östra fasad vetter mot entrégatan och har en relativt stram karaktär. Mot väster skjuter flyglar in i parken, stora glasytor skapar en transparens mellan ute och inne.  Ljus, ljud och luft är några av de ledord som vi haft med oss i utformningen av den nya skolan. 

Genom skolan löper hjärtmuren av tegel. Den börjar i undervisningshusets södra del och slutar i bibliotekets norra del. Parallellt med hjärtmuren finns en gata, huvudkorridoren. Längs denna gata rör vi oss hela tiden, här finns elevskåp, uppehållsytor, toaletter, montrar, konst mm. Muren är både gräns och länk. Gräns mellan korridoren och lärosalarna men samtidigt länk mellan de bägge husen. 

Muren innehåller även all kanalisation, ventilation, vatten, avlopp, elförsörjning, data mm. All försörjning sker vertikalt från den kulvert som löper parallellt under muren.

Lärosalarna har fått stora och höga fönster så att dagsljuset kommer långt in i lokalen. Gatan har flera stora glaspartier för kontakt med parken. Biblioteket har hela glasfasader mot parkområdet och har dessutom fått en uteterrass mot parken på plan 2. Högt sittande fönsterpartier tar in himmelsljus.

Den konstnärliga utsmyckningen samspelar med och kompletterar husets arkitektur på ett naturligt sätt. Fem Gotlandsboende konstnärer engagerades för uppdraget med sina olika tekniker inom textil, keramik, måleri och skulptur.